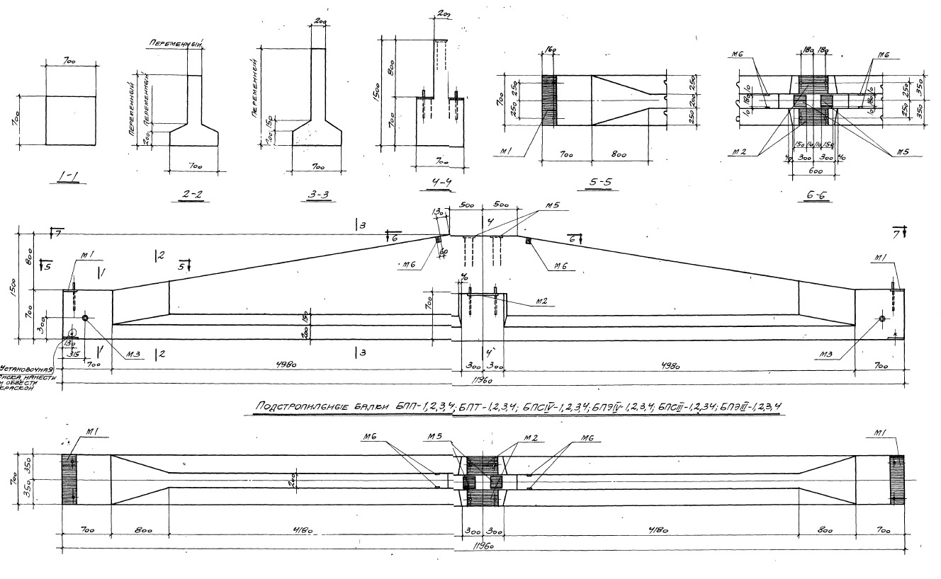
Балка подстропильная БПЭ III-1 предназначена для использования в строительстве как несущий элемент кровли. Изготовлена из железобетона, что обеспечивает высокую прочность и долговечность конструкции. Балка имеет специальное пазообразное соединение для удобства монтажа и обеспечения надежности крепления к стропильной системе.









